Эко домик

Новая модель модульного домика - разработана и спроектирована специально для комфортного проживания на дачном участке зимой и летом.

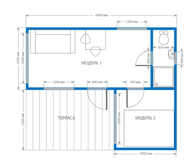
Размеры дома


  • Полезная площадь -39,9 м2
  • Площадь застройки -  61 м2
  • Внешние габариты (ШхДхВ) - 5,7 х 10,8 х 3 м
  • Высота потолков - 2,7 м



Новая модель модульного домика - разработана и спроектирована специально для комфортного проживания на дачном участке зимой и летом.

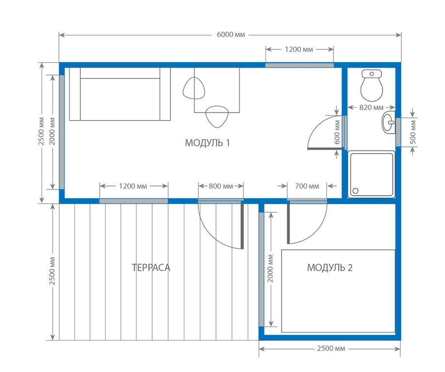
Размеры дома


  • Полезная площадь -39,9 м2
  • Площадь застройки -  61 м2
  • Внешние габариты (ШхДхВ) - 5,7 х 10,8 х 3 м
  • Высота потолков - 2,7 м