Проект ДК-9
Элегантный, практичный и экономичный дом в стиле модерн
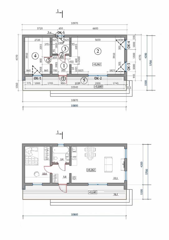
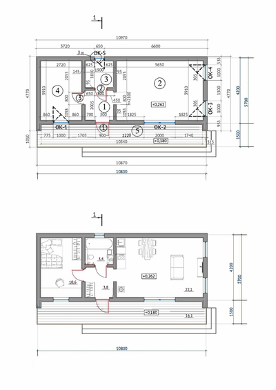
Размеры дома
- Полезная площадь -39,9 м2
- Площадь застройки - 61 м2
- Внешние габариты (ШхДхВ) - 5,7 х 10,8 х 3 м
- Высота потолков - 2,7 м
Элегантный, практичный и экономичный дом в стиле модерн
Элегантный, практичный и экономичный дом в стиле модерн, небольшой по размеру. Изысканный стиль дома подчёркивает не только кубическая форма в основе, но и внешняя отделка
Комплектации
|
|
|
|
|
Каркас без наружной отделки и утепления |
Каркас дома без утепления с наружной отделкой |
Каркас дома с наружной отделкой и утеплением |
|
Цена комплектации |
||
|
от |
от |
от |
|
Панели перекрытия |
||
|
Антисептированные балки из сухой строганной доски сечением 45х195 |
Антисептированные балки из сухой строганной доски сечением 45х195 |
Антисептированные балки из сухой строганной доски сечением 45х195 |
|
|
|
Теплоизоляция пола Paroc Exstra 200 мм |
|
|
|
Покрытие пола ОСБ 22 мм |
|
Панели стен |
||
|
Силовой каркас наружных стен из доски сухой строганной 45х145 |
Силовой каркас наружных стен из доски сухой строганной 45х145 |
Силовой каркас наружных стен из доски сухой строганной 45х145 |
|
Силовой каркас внутренних стен из доски сухой строганной 45х95 |
Силовой каркас внутренних стен из доски сухой строганной 45х95 |
Силовой каркас внутренних стен из доски сухой строганной 45х95 |
|
|
Гидро-ветрозащита стен Tyvek Soft |
Гидро-ветрозащита стен Tyvek Soft |
|
|
Контр брус 45х45 |
Контр брус 45х45 |
|
|
Фасадная доска 20х145 окрашенная сорт АВ для внешних стен |
Фасадная доска 20х145 окрашенная сорт АВ для внешних стен |
|
|
Сетка от грызунов оцинкованная |
Сетка от грызунов оцинкованная |
|
|
|
Теплоизоляция стен Paroc Exstra 150 мм |
|
|
|
Пароизоляция Внешних стен FINKA 200мк |
|
|
|
Пароизоляция внутренних стен Ондутис |
|
|
|
Окна ПВХ 70 мм белый, двухкамерный стеклопакет. С отливом и внешней отделкой |
|
|
|
Дверь входная деревянная временная |
|
Панели межэтажного перекрытия |
||
|
Силовой каркас межэтажного перекрытия из доски сухой строганной 45х195 |
Силовой каркас межэтажного перекрытия из доски сухой строганной 45х195 |
Силовой каркас межэтажного перекрытия из доски сухой строганной 45х195 |
|
|
|
Теплоизоляция Paroc Exstra 200 мм |
|
|
|
Пароизоляция FINKA 200мк |
|
Кровельная конструкция |
||
|
Силовой каркас крыши из доски сухой строганной 45х195 |
Силовой каркас крыши из доски сухой строганной 45х195 |
Силовой каркас крыши из доски сухой строганной 45х195 |
|
Гидро-ветрозащита стен Tyvek Soft |
Гидро-ветрозащита стен Tyvek Soft |
Гидро-ветрозащита стен Tyvek Soft |
|
Контр брус 45х45 |
Контр брус 45х45 |
Контр брус 45х45 |
|
Обрешетка из доски сухой не строганной 25*100 |
Обрешетка из доски сухой не строганной 25*100 |
Обрешетка из доски сухой не строганной 25*100 |
|
Кровельное покрытие металлочерепица Grand Line 0.5 мм |
Кровельное покрытие металлочерепица Grand Line 0.5 мм |
Кровельное покрытие металлочерепица Grand Line 0.5 мм |
|
|
Доска для свесов кровли сухая строганная 20х90 окрашенная |
Доска для свесов кровли сухая строганная 20х90 окрашенная |
|
|
|
Водосточная система Docke Premium |
|
|
|
|
Поделиться